Klubben investerer i fremtiden
Av: Ane Risa | Publisert: 6. februar 2026 | Siste nyheter | Arkiv
Les om prosjektene som legges frem på årsmøtet
Sola Golfklubb har alltid vært offensive og sett etter muligheter og måter en kan videreutvikle klubb og anlegg. Vi har fått nytt klubbhus på Solastranden, et innendørssenter med simulatorer på Forus samtidig som vi har investert i økt bemanning og videreutvikling av banene. Alt dette gjorde vi før golfboomen og ventelistene.
Vi ser jo nå at kapasiteten er sprengt på både baner, innendørs og på treningsområder. Som idrettslag ønsker vi at flest mulig skal få prøve den fantastiske sporten vi holder på med og det føles feil å måtte si nei til skoler, barnehager, bedrifter, organisasjoner og andre som ønsker å prøve golf for første gang. De nye prosjektene vi igangsetter er derfor ikke for at klubben skal tjene mer penger, men for å kunne øke kapasitet og gi både nye og gamle medlemmer en bedre opplevelse.
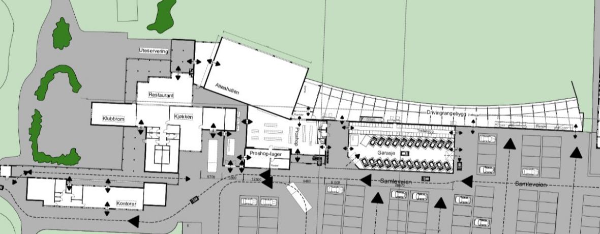
Årsmøtet i 2025 vedtok bygging av ny driving range, garasje til golfbiler, ny innendørs aktivtetshall, flere tralleskap og et nytt servicesenter for klubben som vil øke kapasitet og åpne opp for at flere kan få prøve uten å måtte gå ut på banene. Dessverre fikk vi ikke dette på plass til årets sesong, men vi har gjennom hele året jobbet med planer og tegninger og utbedret disse samtidig som en har jobbet med kommunen for å få godkjenning til utbyggingen. Dette ser nå ut til å komme på plass og en håper å sette første spadestikk når sesongen går mot slutten.


Det er gjort flere analyser på kostnader/inntekter som kan legges frem, men hovedfokus har som sagt ikke vært at klubben skal tjene masse penger, men at en opprettholder tilfredshet og øker kapasitet uten å samtidig måtte øke priser for at disse investeringene skal lønne seg.
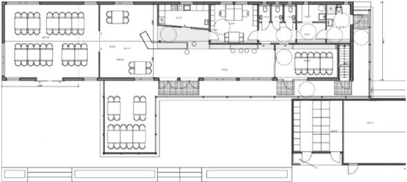
Aktiviteten på Solastranden har økt betraktelig både med spilte runder, turneringer og treningsområdene her. Klubbhuset ble bygget nøkternt og uten egentlig et oppholdsrom for våre gjester og medlemmer. Det ønsker vi å få gjort noe med slik at en også på Solastranden kan gå inn etter en turnering og ha premieutdeling samtidig som en kanskje kan få noe å spise. Mange av våre samarbeidspartnere har også etterlyst muligheten til å vise frem Solastranden til sine leverandører og kunder. En kan da kanskje fordele turneringer bedre på begge baner. Målet her er ikke flere turneringer og mer stenging av banene, men en jevnere fordeling av turneringer mellom banene. Med utvidelse av kjøkkenet på Solastranden kan vi kanskje også tilby medlemmer å leie den nye stuen til bursdager, konfirmasjoner osv. En har da valget med å komme til dekket bord i Bistro på Forus, eller ordne mer selv om en ønsker det på Solastranden.


Igjen er ikke utvidelsen gjort for at klubben skal kunne ta inn flere samarbeidspartnere, eller arrangere flere turneringer for å tjene mer penger. Det er for å gi medlemmene et bedre tilbud og våre samarbeidspartnere et alternativ når de skal invitere kunder og leverandører.
Med utvidelse av range på Forus i to etasjer kommer det også et krav om bedre sikring ut mot Åsenvegen. Dette prosjektet kommer forhåpentlig også på plass før vi åpner rangen i to etasjer. Utfordringen her er at skal nettet ha størst effekt så bør det stå så nærme veien som mulig og vi må da ha plassere nettet utenfor det området vi selv leier. Får en satt det like ved veien kan en redusere høyde og dermed også mindre vindfang og forhåpentligvis også reduserte kostnad. Vi søker tilskudd og støtte til en slik sikring for å redusere kostnadene som vil ligge rundt 1-1,5 mill.

Vi jobber også med å kunne få lagt kunstgress på driving rangen her slik at vi kan redusere ballsvinn, redusere slitasje og vedlikehold samt at en kan få på plass flere targets og gjøre det enda mer underholdende å trene.
Når en så har løst disse kapasitetsproblemene vil en kunne fortsette med å videreutvikle våre baner. Målet vil være å gjøre golfspillet og golfbanene både morsommere og vakrere med bærekraft for fremtiden. Må en ombygge greenområder, flytte og endre på bunkere, bytte ut vanningsanlegg for å sørge for optimal vanning, samt se på drenering og gjenbruk av vann? Styret har opprettet en gruppe som skal se på dette og en har allerede gjort en test på Hull 16 Forus for å se hvordan en kan videreutvikle dette hullet. Skal en gjøre samme oppgave på alle hullene våre vil det både være tidkrevende og kostbart. Og før en starter en større ombygging er en derfor også avhengig av å forlenge leieavtale med grunneiere og sørge for at en slik investering kan nedbetales over lengre tid. Været og spilleforhold forandrer seg stadig og en må sørge for å holde våre baner oppdatert slik en tilpasser seg en evt ny hverdag med mer ekstremvær og bedre spilleflater.
H

Har du spørsmål eller lurer på noe rundt prosjektene våre så ta bare kontakt eller møt opp på årsmøtet :)
André (andre@solagk.no)
Daglig leder



